历史委员会支持历史rowhouse之上
这不是增加三楼角落应该是什么样子。图片由Wayan VotaFlickr。
额外的地板上的历史性rowhouses,有时被称为“弹出窗口”,是一个最受人唾弃的修改历史街区之外。并有充分的理由:他们通常丑陋,廉价,伸出拇指痛不仅对他们的身高但使用的材料完全不兼容的老房子。
同时,当地历史董事会也闻名坚定的反对者几乎所有的变化,无论多么值得称赞的。毕竟,他们通常吸引那些喜欢附近的方式,就会永远保持完全相同。
因此,它可能非常奇怪,杜邦环岛保护协会,杜邦环岛附近的街区历史回顾组织,支持一个三楼的除了在角落的一个历史性的rowhouse 15和年代,西北。
他们决不会同意的哪怕是一点点喜欢照片中的丑陋的怪物,但并非所有的增加必须这样。他们甚至不会批准除了大部分房屋。但历史回顾可以确保添加看起来不像,至少在有限的情况下,使建筑本身的发展。
赞成和反对的态度保护主义者这一变化突出保存两个不同的哲学,和DCC的支持这一改变显示的进化保存在华盛顿从一个到另一个。
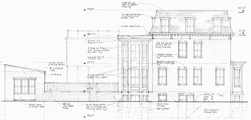
最块区域有更大的公寓或商业建筑的角落,否则大rowhouse-sized建筑长边的主要形式,正门(如17和年代的西南角)。在短端入口时,建筑往往是更独特,高或锚的行。

1641年1461年代,NW从15街。从软件架构师形象。


1641年1461年代街(左)和众议院在S(右)。软件架构师的照片。
业主提出添加类似的折线形屋顶,但更多的曲率。她也想删除一些后除了获得财产的入住率允许很多,但延长第二和第三层,后面先匹配的大小。她还将添加一个湾15街,添加窗口,重做墙后面的院子里包括砖,并重建车库作为办公室,消除车辆的入口15日。
房子目前有多个厨房允许被用作多个单位,但是老板说她和她的家人会占据整个房子。她已年迈的亲戚照顾,希望空间来容纳它们。房子3的故事加上一个地下室是非常普遍的在该地区,并允许分区。应该保护历史古迹禁止添加呢?这是房子处于历史低点吗?一些人认为它是。三楼不是原始,因此没有历史。对保护历史这种观点认为,无论,是历史性的,保存的工作是保持历史事物的方式(“保存。”)HPO评核报告归结在另外的理由是HPRB历来不允许添加,修改车顶。事实上,HPRB没有。应该是一个绝对的规则吗?保护成员并不这么认为。在一项决议,我写道,他们说,
当我们觉得第三个故事除了从大街上都能看到应该只被允许在特别情况下,这个建筑的作用在大历史街区和相对于其他角落锚建筑证明一个例外。我们认为这个项目将加强15街的整体特征,因此支持这个项目。
我和其他的支持者认为不同的看法从“历史是现有的,和保存对保持的历史是一样的。“相反,看看历史街区的精神。U街历史街区(这个属性,尽管它在杜邦环岛附近的大多数措施),以及相邻的奋斗者的部分和杜邦环岛地区,具有2 -砖房和原有建筑物和优雅的角落。现在,这所房子看起来是一个异常,一块失踪的历史性的织物。如果这个项目前进,历史街区看起来更加完整。将完成的原始建筑意图似乎是什么。和路人会认为这房子最初三楼,如果它是正确完成。这不是像Petworth的乙烯基弹出窗口看起来显然是不相容的。这使得众议院显得更加兼容。需要高品质的材料和良好的工艺。这是适当的,必要的,保护,HPO,和HPRB仔细监视计划进展最终确保这是最高的质量和看起来与其他兼容,类似的历史性的屋顶。 DC’s preservation movement has been declining in numbers and strength. The citywide historic groups do not get the numbers they once did at their events. Yet historic preservation is a valuable part of DC and shouldn’t fall by the wayside. Instead, we need to redefine it in a way that works with, instead of against, sustainability, urbanism, Smart Growth, and the overall value of growing DC. These needn’t be mutually exclusive. Allowing a third floor on this house while requiring the strictest adherence to architectural quality and historically compatible materials is a great way to advance all of these goals, and to improve the overall look of the neighborhood at the same time.


