你知道更大华盛顿有一个基地?
直到去年年底,大大华盛顿经营的咖啡店和大卫·阿尔珀特的地下室的办公室。随着员工的成长,也需要更多的永久空间。我们搬进了一个11月!
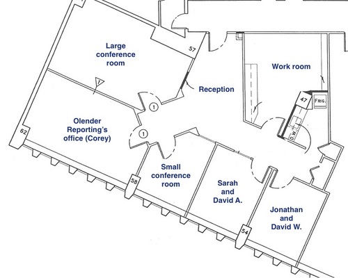
小预算的1800美元一个月,我们开始寻找光明,位于空间可以容纳四人在华盛顿,并提供访问会议空间。看后半打可能的选项包括联合办公空间,私人空间,共享办公空间,我们发现我们正在寻找什么。
自去年11月以来,我们称为810套房在康涅狄格大道1100 NW回家。
参观我们的办公室
我们租两个办事处和分享一个小型和大型会议室的使用与我们的套件的伴侣,Olender报告。
员工编辑乔纳森•Neeley和大卫·怀特黑德,我们的住房项目组织者,共享一个办公室。bd官方网站登录入口
在任何一天,你会发现乔纳森忙DIY坐立在他的书桌上编辑贡献者”的帖子。大卫。另一方面,进出办公室,经常会见的人想帮助更大的更大支持更多的人更多的住房在华盛顿地区。bd官方网站登录入口
大卫·阿尔珀特和我分享另一个办公室。
你会发现大卫在星期三和星期五会见员工博客,我们的住房计划,组织的战略方向。bd官方网站登录入口剩下的一周,大卫是从事研究休假,他深深入的经济住房、开发和增长更好地理解塑造住房成本和识别最有前途的解决方案使住宅更加丰富和实现。bd官方网站登录入口
在办公室里我在这里大多数日子,花我的时间支持工作人员和志愿者,筹款继续博客和我们日益增长的住房项目的强大,和跟踪我们的财政状况。bd官方网站登录入口
满足我们的实习生
有专门的空间也意味着我们可以从亚利桑那州立大学欢迎两个实习生!
斯凯勒·戴维斯和梅根·凯利在直流做一个学期学习国际发展和宣传。当原来的位置在今年3月,我们做了一个快速的决定,欢迎他们的最后五周。他们是一个伟大的除了团队过去几周,我们会想念他们当他们结束本周实习。谢谢,斯凯勒和梅根!
和我们的邻居
Olender报告的科里尼科尔斯占据了其他办公室套件。我们都市生活激发了他的兴趣,他甚至加入我们的国民游戏几周前,遇到了我们的一些贡献者。
来参观!
现在您已经了解了我们工作的地方,让我们知道如果你想要来参观!无论你是一个贡献者谁需要一些空间后,或一个读者有一个好主意你想告诉我们,来吧。






